The government, in association with real estate builders, envisions the construction of affordable houses by eco-friendly methods in selected cities. The CLSS or Credit Linked Subsidy Scheme under this flagship program provides interest subsidies on home loans to build, purchase or renovate existing homes.
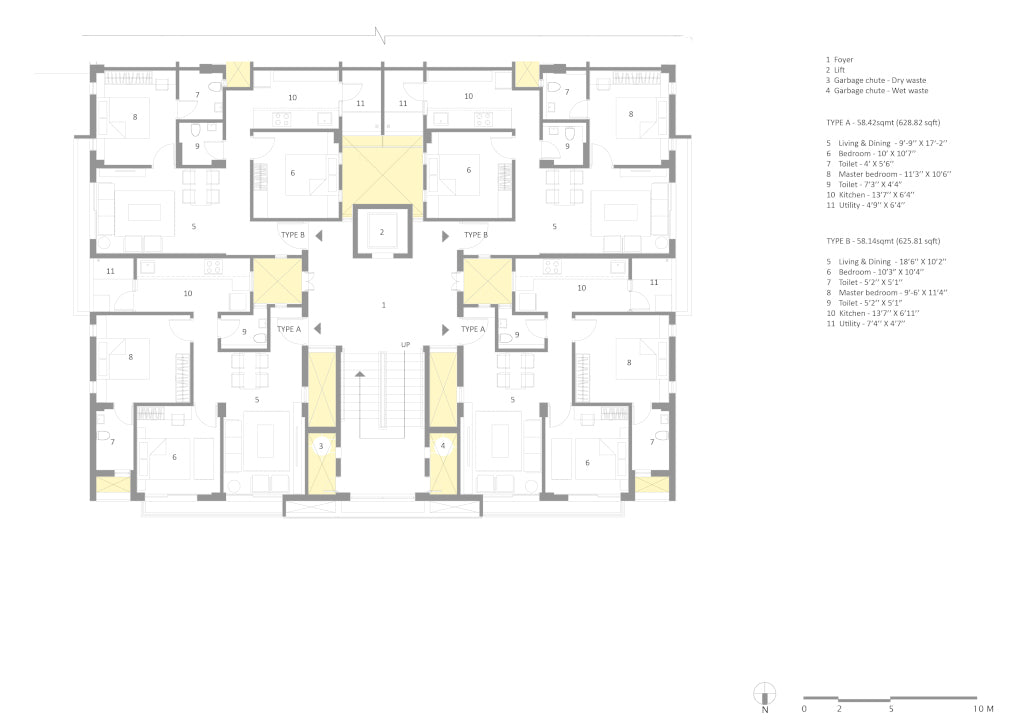
This design proposes apartment units in the 40 sqm and 60 sq.m categories under these schemes make housing accessible to low income households.
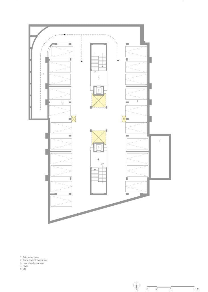
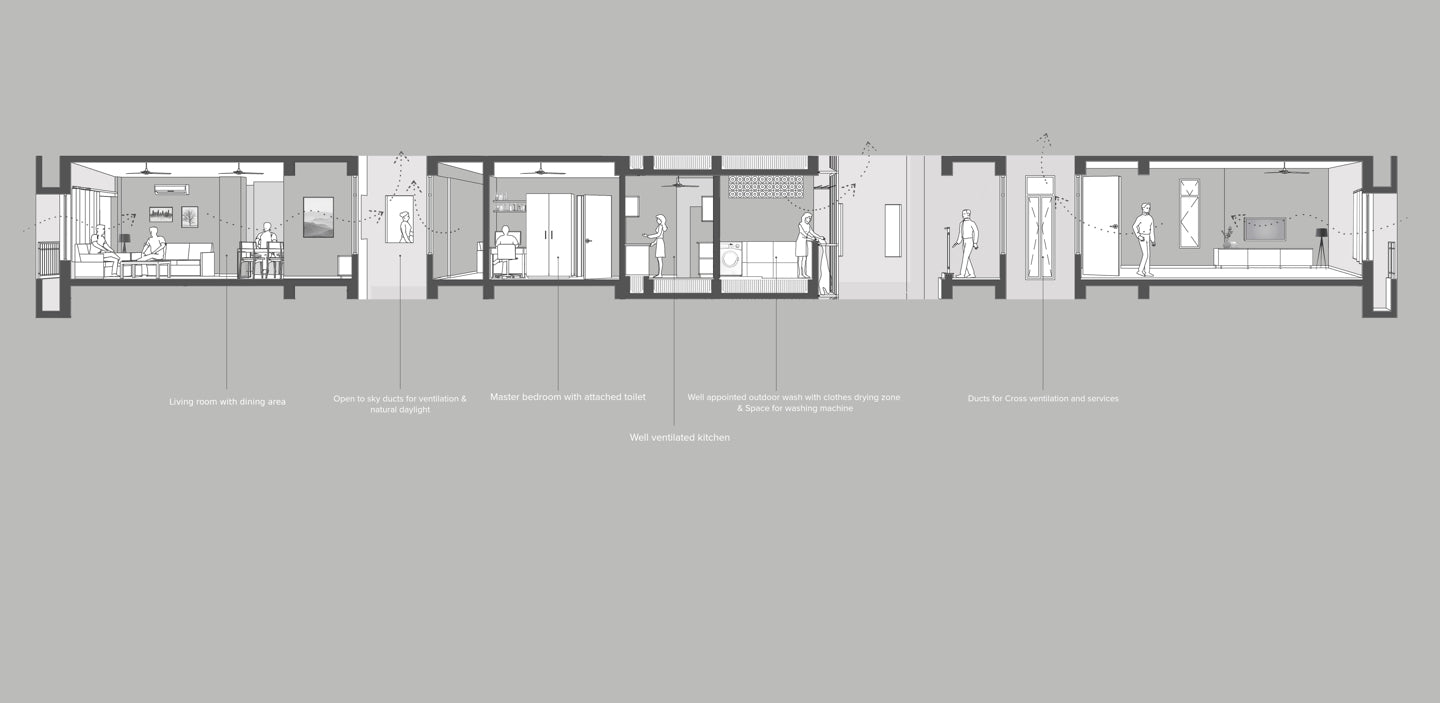
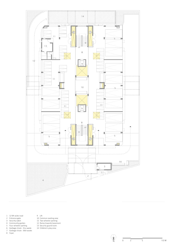
The key design criteria looked at liveability, affordability and improved quality of life in a dwelling environment.







