This project was an effort to establish a center for excellence to further the level of endoscopic surgical skills and diagnostics in the context of an already established world renowned center for urology.
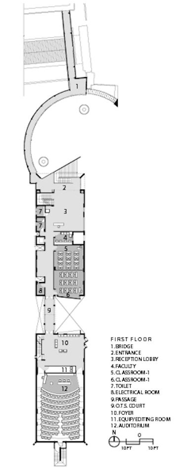
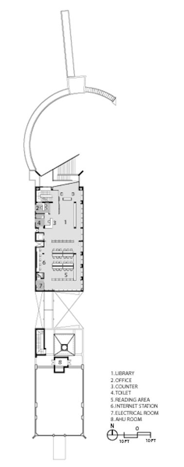
The academic program is primarily designed for practicing urologists to enroll for sessions under the instruction of eminent medical professionals from various parts of the world. The facilities included were namely, laparoscopic labs with simulators, wet lab with facilities for demonstrative procedures, networked classrooms capable of distance learning, an auditorium facility capable of linking all the 4 operation theaters at the hospital simultaneously and capable of relaying and accepting visual data globally in real time and finally a library and resource center with documentation and research facilities.
































