Kukma village in Kutch lies 30 km south of Bhuj.
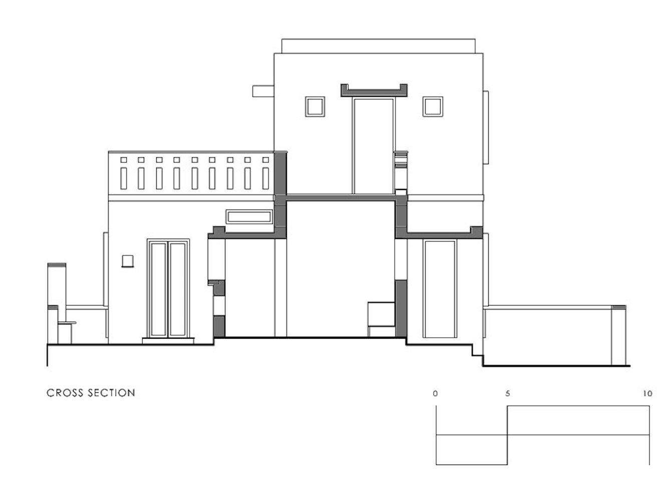
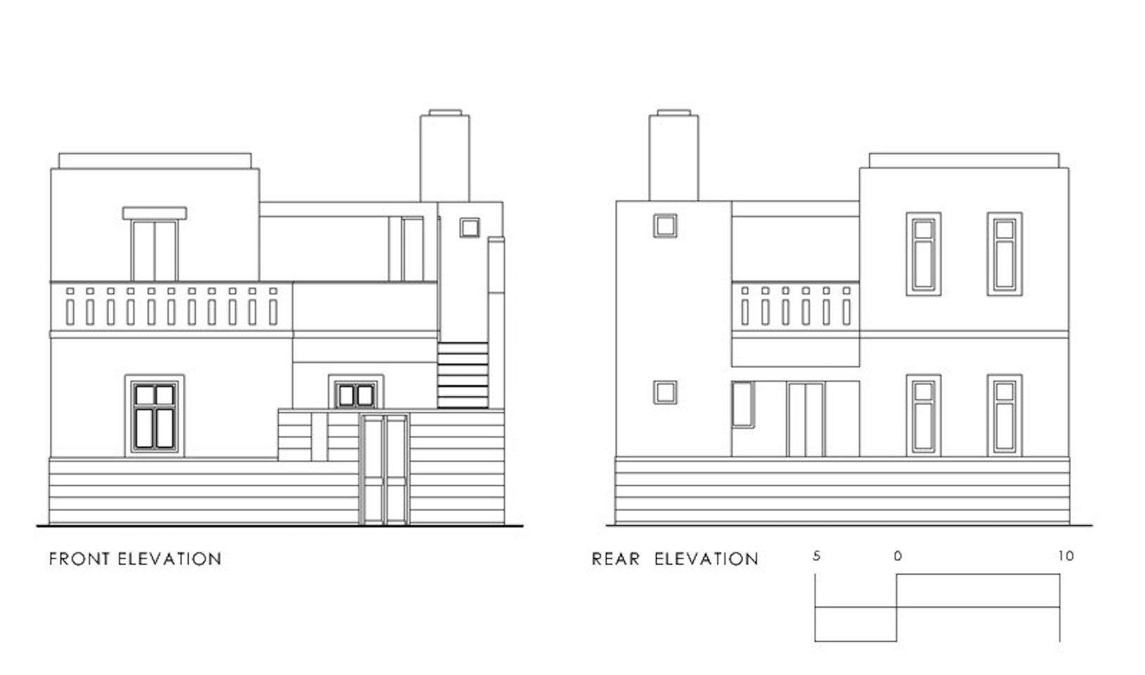
The site was a narrow strip of land measuring 3 acres earmarked for the staff housing for the NGO Shrujan. A mixed income housing proposal that cross subsidises costs across various house types was attempted.
The key issues addressed were water and sustainability, thermal comfort, low cost construction, planning for various social events within the community and creating a community of sensitive individuals wanting to lead a self sustaining lifestyle.
















