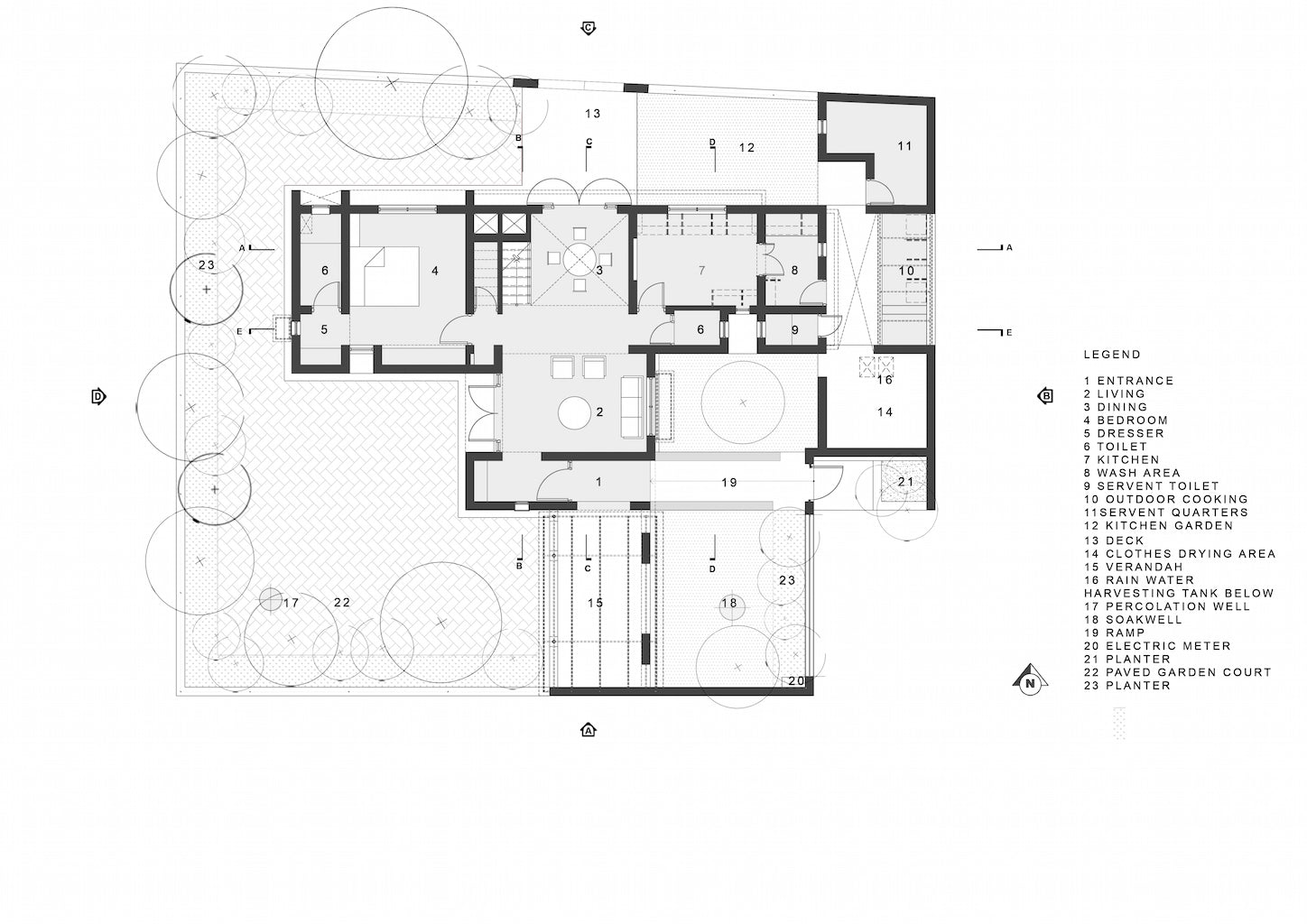
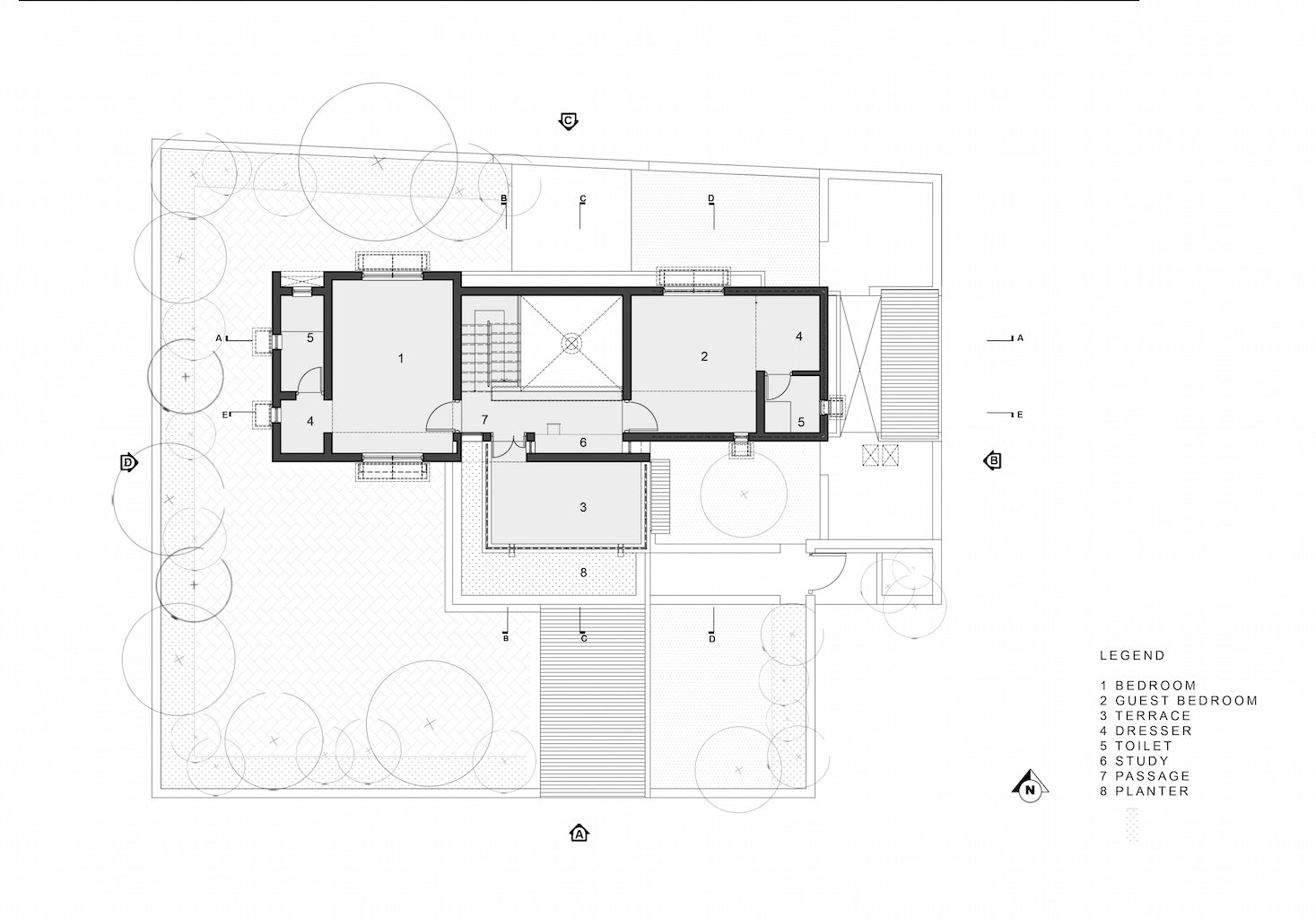
with three bed-rooms, indoor and outdoor living spaces made a very mundane design brief.
Interestingly however, ‘the idea of the dwelling’ was to be re-evaluated and executed with convincing sustainable strategies, both as a process and the product.
Quality of spaces and the character of intimate domesticity with connections to the verdant garden space, were the focus of the design.














