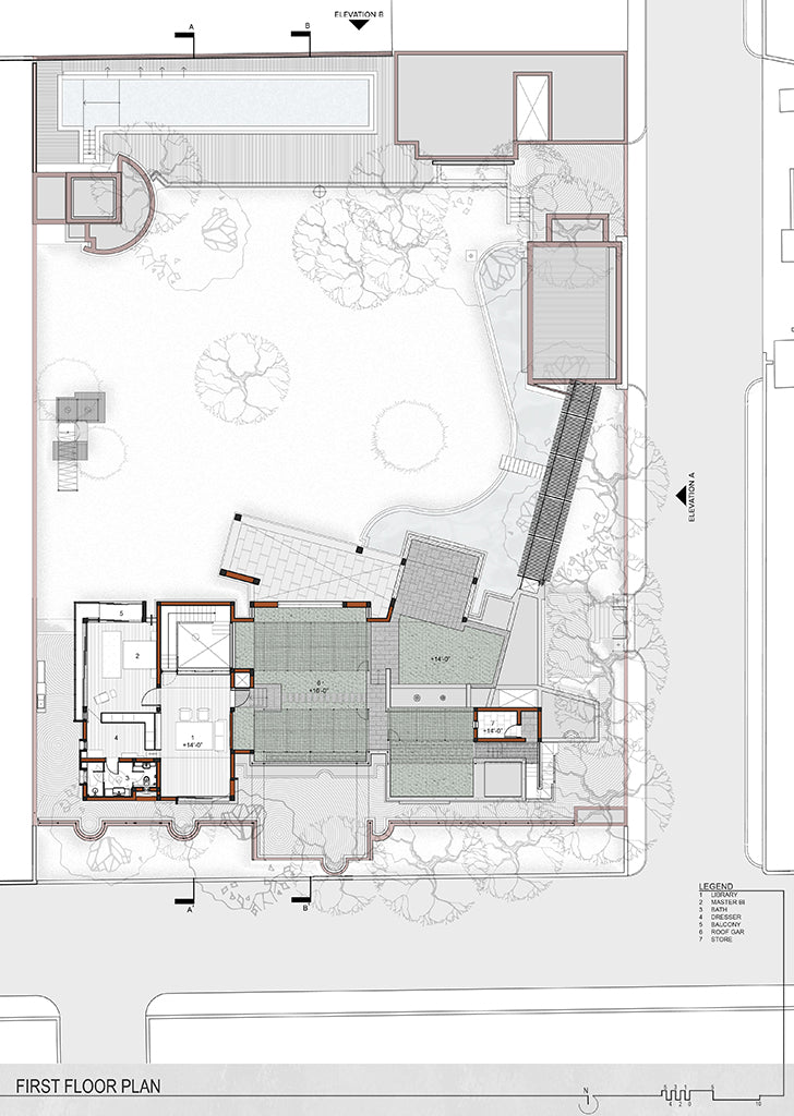
A home for a nuclear family was designed to engage with its many sided vistas and shaded trees.
Deriving an expression of its own, it uses the language of bold masonry walls decked with lime and dolomite plasters that lend congruency to its neighbors, amidst prototypical lots of land with homes in exposed brick and concrete. The challenge was to define an identity and address pertinent issues of appropriate materials, thermal comfort and engage with the public edge and land in a meaningful manner.















































