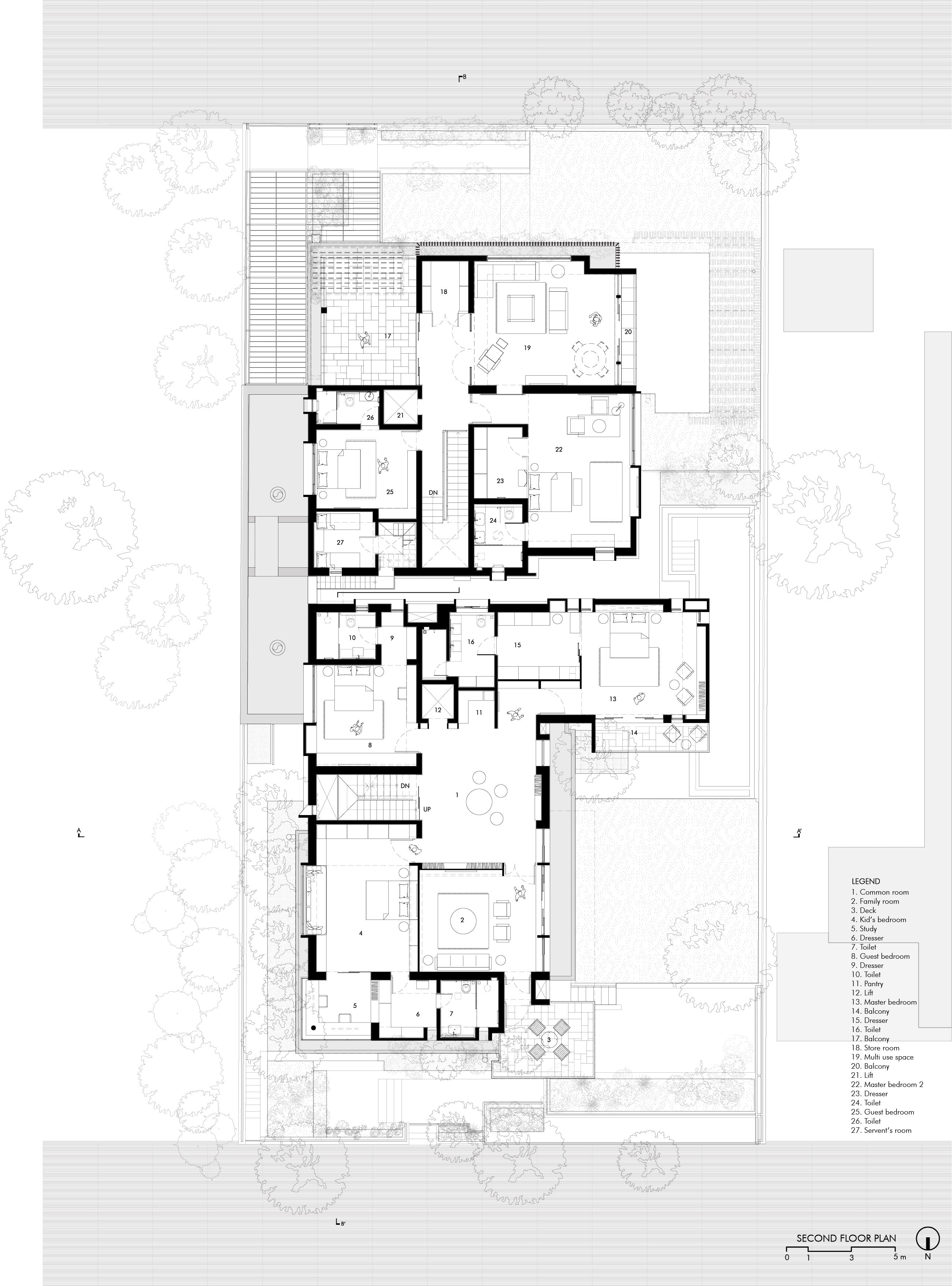
A large urban plot accommodates two independent residences for a semi-joint family across three generations. The seniors occupying the house to the south, the living realms are defined with distinct privacy zones, gardens and social spaces that turn away from each other. A forced dis-association reflected in the plan. However, orientation to the sun and wind flow dictate the architectural strategies for both dwellings. Accessed north-south, the houses are conceptualized as large urban homes with generous proportions of rooms. Continuous living, dining and leisure spaces open towards either the patio or the garden creating seamless extensions along the east-west axis and allowing play of natural light.
The family home as a duality. Separate yet conjoined in ways. Detail and material articulation as armature for shade, rainwater and surfaces to resist summer heat, enabling natural cover to take over.
location:
makarba, ahmedabad, gujaratdesign team:
uday andhare, mausami andhare, swapnil parashar, maitri panchalconsultants:
stuctural consultant: ami engineers, mehul shah; mep consultant: HP consulting engineers; hitesh patel, civil contractors: devmani projects; Jatin Shah, carpentry work: dungarsinh mistry, fabrication work: khodiyar engineering works; bhavesh panchalsite area:
12141 sq.ft.building area:
16938 sq.ft.completion year:
2024photo credits:
uday andhare

















































